ID Immobile : CT590
VENDITA € 2.300.000 - Capannone, Edificio, Magazzino, Ufficio
BASIANO – COMPLESSO INDIPENDENTE CON AMPI SPAZI E GRANDI POTENZIALITÀ
Nel cuore della Brianza, in posizione fronte strada e strategicamente collegata all’autostrada A4 Milano–Venezia, proponiamo in vendita importante complesso immobiliare indipendente su quattro lati, inserito in un lotto di circa 5.000 mq.
Una soluzione unica nel suo genere, perfetta per chi cerca spazi generosi, versatilità e opportunità di sviluppo, ideale per attività imprenditoriali, artigianali o per chi desidera unire abitazione e lavoro nello stesso contesto.
Superficie commerciale totale: circa 2.860 mq
AREA RESIDENZIALE
Appartamento al piano primo di 325 mq, con terrazzo di 76 mq e cantina di 150 mq
Appartamento al piano primo di 129 mq, con balcone e cantina (7,60 / 17,5 mq ca)
Appartamento al piano secondo di 186,5 mq, con balcone di 6,80 mq
UFFICI
Piano terra: 431 mq
Piano terra: 106 mq
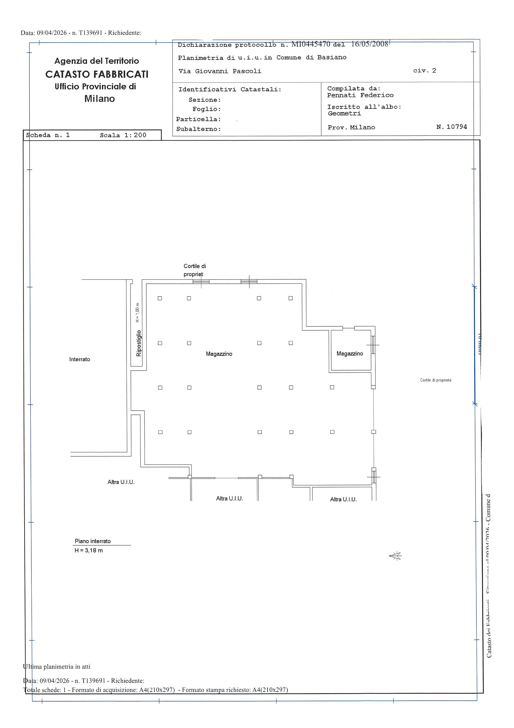
CAPANNONE / MAGAZZINI
Totale 642 mq al piano terra
(suddivisi in due unità di 450 mq e 192 mq)
AUTORIMESSA
Piano interrato: 141 mq, con capacità fino a 8 auto
POSIZIONE STRATEGICA
Situato a metà strada tra Milano, Bergamo e Monza, il complesso gode di una posizione estremamente comoda e ben collegata.
Inserito in zona industriale ma circondato dal verde, offre:
✔ Facilità di accesso
✔ Ampie possibilità di parcheggio
✔ Tranquillità nelle ore serali
A pochi minuti da tutti i principali servizi: scuole, supermercati, farmacie, uffici postali, negozi e ristorazione.
PLUS DELL’IMMOBILE
✔ Indipendenza totale su quattro lati
✔ Ampio lotto di terreno (5.000 mq)
✔ Destinazione d’uso mista (residenziale + produttiva)
✔ Capacità edificatoria industriale/artigianale
✔ Soluzione ideale per attività + abitazione
Un’opportunità rara per chi cerca spazio, indipendenza e possibilità di sviluppo in una delle zone più richieste della Brianza.
















































